






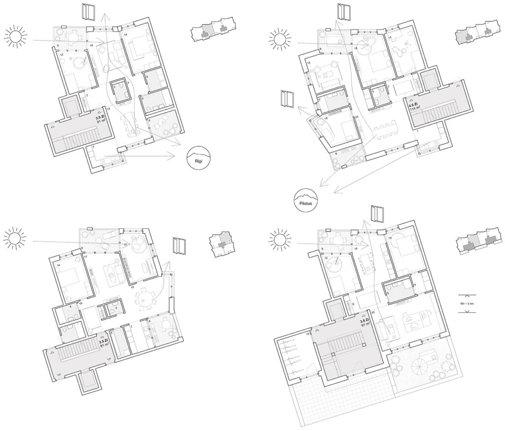
Projekt /// Luzernerstrasse Meggen
Verfahren /// Projektwettbewerb mit Präqualifikation, 2. Rang
Auftraggeber /// Gemeinde Meggen
Bearbeitungszeitraum /// 2020
Verfasser Projektentwurf /// Planergemeinschaft Mirlo Urbano / Brühlmann Loetscher (Architektur/Städtebau/Federführung) /
SIMA BREER Landschaftsarchitekten
Projektleitung BLAS /// Christoph Loetscher
Aufgabe /// Wohnbauten mit Gewerbe-/Verkaufs- und Dienstleistungsnutzflächen / Freiraumgestaltung Strassenraum und Sportanlagen / öffentliche Tiefgarage










